LO2低温液氧减压阀操作使用说明
低温液氧减压阀,也叫进口低温液氧调压阀,进口液氧压力调节阀,进口液氧减压稳压阀,是在低温贮槽上用于将低温液氧的压力保持在某一规定范围内,也就是将液氧介质的阀前进口的高压力减到并稳定在阀后出口所需要的压力值的阀门。
Cryogenic liquid oxygen pressure reducing valve, also called imported low-temperature liquid oxygen pressure regulating valve, imported liquid oxygen pressure regulating valve, imported liquid oxygen pressure reducing and stabilizing valve, is used on low-temperature storage tanks to maintain the pressure of low-temperature liquid oxygen at a certain level. Within a specified range, that is, a valve that reduces the high pressure of the liquid oxygen medium in front of the valve to and stabilizes it at the pressure value required at the outlet behind the valve.

低温减压阀主要产品有进口低温不锈钢减压阀,进口低温调压阀,进口低温泄压阀,进口低温不锈钢减压阀,进口低温焊接减压阀,进口低温法兰减压阀,进口低温压力调节阀,进口LNG低温减压阀,进口液氧减压阀,进口液氧减压阀,进口液氩减压阀,液化天然气减压阀,进口低温深冷减压阀等。

液氧即液态氧。 液态氧(常用缩写LOX或LO2表示)是氧气的状态为液态时的液体。它在航天,潜艇和气体工业上有重要应用。液氧为浅蓝色液体,并具有强顺磁性。它的主要物理性质如下:通常气压(101.325 kPa)下密度1.141 t/m3 (1141kg/m3),凝固点50.5 K(-222.65 °C),沸点90.188 K(-182.96 °C)。液氧具有广泛的工业和医学用途。工业上制造液氧的方法是对液态空气进行分馏。液氧的总膨胀比高达860:1,因为这个优点它在现代被广泛应用于工业生产和军事方面。

二、LO2低温液氧减压阀操作使用说明参数
公称通径:DN10-100
适用温度:-196℃-+80℃
公称压力:2.5 Mpa
强度试验:3.75 Mpa
连接方式:螺纹连接,内螺纹,外螺纹,焊接
调压范围为:0.1-0.8Mpa,0.2~1.0MPa,0.8~1.6MPa
适用介质:液氧、液氧、液氩、液空、液化天然气、LO2、LN2、LAR、LNG等
适用于:空分设备、石油、天然气液化分离设备、化工尾气分离设备、液态氧、氮、氩、氢、二氧化碳低温贮槽及槽车,变压吸附制氧、氮及回收氢设备,乙烯高温裂解装置,电站等行业。

LO2低温液氧减压阀操作使用说明
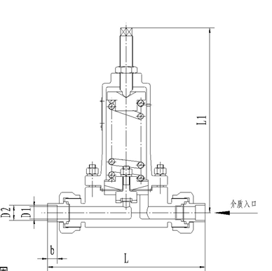
低温深冷调节阀采用长颈阀盖保温,配用多弹簧执行机构,具有总体结构紧凑、重量轻、稳定性好等优点。阀体采用精密铸造角形结构,材料为铝合金,具有良好的耐低温性。波纹管密封保证了调节阀在低温场合不外漏。因而广泛用于冶金、空分、制氧、石油、化工等低温、深冷场合。特别用于控低温气体、流体(如液氧、液氩等)的工艺参数保持在给定定值。

在这里小编与调节阀国际品牌为例,LO2低温液氧减压阀操作使用说明为大家讲解一下。
当调节阀的操作温度远远低于冰点时,应采取特定的预防措施,在某些情况下,必须用特殊结构来满足操作要求。主要的问题是适当的选择结构材料,特别是在低温操作条件下(到-101℃)。深冷是指温度低于-101℃的生产操作,这时要考虑许多附加因素。
温度范围在-29℃-101℃之间时,对承受压力的部件要采用特殊的抗冲击碳钢,在-29℃-46℃之间时,一般采取LCB碳钢材料,到-101℃时,采用3.5%镍钢,这些阀门一般装有普通的长颈型上阀盖,在这样的温度范围,主要的目的是使进入系统的热量尽量减少,并防止填料函部分不至于因为太冷而使上阀盖的上面部分和填料函上的阀杆结冰。普通的长颈型上阀盖一般装在垂直位置,以减少操作流体本身的传热。

在深冷温度时,结构材料现在不采用碳钢,而是采用奥氏体不锈钢、青铜、蒙乃尔合金。在这样的温度范围内,调节阀的操作一般是控制极冷的气体和液化气,常常碰到的有:空气、氮气、氧气、氢气和氦气。
现在要特别注意长颈型上阀盖的结构。甚至当阀体材料是青铜时,长颈型上阀盖一般也采用奥氏体不锈钢以减少传热,要极为注意:液化气不能都集聚在上阀盖之间,因为关闭时不断的汽化有形成高压的危险。
是所有的情况下,调节阀要严格的绝热。在工厂低温区的的工艺设备配管和阀门常常在冷箱中。这种情况下,调节阀有一个特别长的上阀盖,它可以装在水平位置。直径较大的上阀盖部分用不锈钢制成,并从冷箱壁层中伸出来。这样,不涉及阀体就可以卸下包括阀芯和阀座的阀内件,阀体可以焊在系统中以减少冷箱本身的泄露。

LO2低温液氧减压阀操作使用说明
一般,深冷调节阀在加工时,特别在装配时,对清洁度的要求更为严格。
在选择润滑剂时要注意,在装配零件时可以用它来防止磨损,有许多润滑剂会固化或者变脆,而有许多不适用于流动的流体。为此,已经开发了许多用于这种场合的化合物,并已大量使用。还有许多需要特别注意的事项,例如:当调节液体氟时,它和任何碳氢化合物接触都会自燃;控制氧气时,无论是常温还是深冷,存在更普遍的问题,除了和某些杂质接触有自燃的可能性外,氧气还能助燃,如果一旦发生火灾,将烧毁整个管线系统,大多数阀门公司对深冷调节阀都需要进行脱脂处理。

三、LO2低温液氧减压阀操作使用说明材料表
|
名称 |
阀体 |
阀盖 |
弹簧 |
膜片 |
阀顶 |
密封圈 |
|
材质 |
低温不锈钢 |
低温不锈钢 |
低温不锈钢 |
低温不锈钢 |
复合件 |
聚四氟乙烯 |

四、LO2低温液氧减压阀操作使用说明产品特征
1、低温减压阀结构紧凑、体积小、重量轻。调节灵敏,稳定性好。
2、低温减压阀带可调装置,压力调节方便
3、低温减压阀阀门经低温深冷处理,可耐-196℃低温
4、低温减压阀垫片具有在常温下、低温状态及温度变化下能可靠密封性和复原性,密封性能好
安装减压阀时,请确认其连接规格是否与钢瓶和使用系统的接头一致。 减压阀和钢瓶在半球面连接,通过拧紧螺母使两者*一致。 因此为了确保良好的气密效果,使用时必须保持两半球面的光泽。 安装前可以用高压气体吹掉灰尘。 根据需要,也可以使用聚四氟乙烯等材料作为垫片。

LO2低温液氧减压阀操作使用说明操作步骤:
1、使用时,打开钢瓶主开关,顺时针转动低压表压调节螺杆,压缩主弹簧,传动薄膜、弹簧块和顶杆,打开闸门。 这样进口的高压气体经高压室节流减压后,进入低压室,通过出口通向工作系统。
2、转动调节螺钉,改变闸门开启高度,调节高压气体通过量,达到所需压力值。
3、减压阀带有安全阀。 是保护和安全使用减压阀的装置,也是减压阀发生故障的信号装置。 当门垫、活门损坏或其他原因导致出口压力自行上升,超过一定允许值时,安全阀自动开放排气。

LO2低温液氧减压阀操作使用说明使用注意事项
3、减压阀请勿接触油脂,以免引起火灾事故。
4、停止作业时,请清洁减压阀上残留的空气,然后拧松调节螺钉,避免弹性体长期受压变形。
5、减压阀应避免冲击振动,不与腐蚀性物质接触。
本文地址: https://www.xsyiq.com/43369.html
网站内容如侵犯了您的权益,请联系我们删除。